Strona tymczasowo niedostępna...

Od dewelopera po remoncie, ogród, miejsce w hali

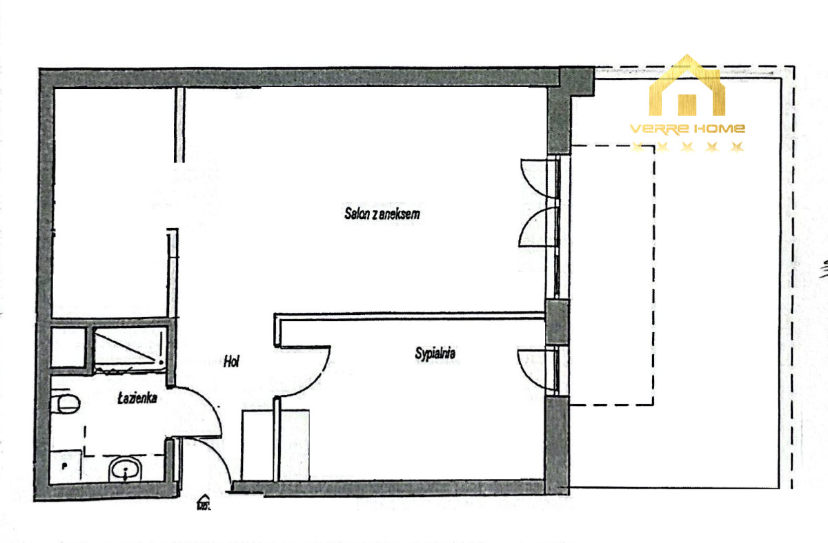
Mieszkanie na sprzedaż
760 000,00 PLN , Pow. 66,45 m2
Drukuj ofertę
Drukuj ofertę
Typ nieruchomości:
Mieszkanie
Powierzchnia:
66,45 m2
Typ transakcji:
sprzedaż
Liczba pokoi:
2
Lokalizacja:
Rumia , Krakowska
Rok budowy:
2024
Piętro:
0 na 2
Numer oferty:
VH900064
Cena za m2:
11 437,17 PLN
ZAKUP OD DEWELOPERA !
Szukasz mieszkania gotowego do zamieszkania?
Ta oferta jest dla CIEBIE.

LOKALIZACJA:
Nieruchomość położona w Rumi przy ul. Krakowskiej 16. W pobliżu pełna infrastruktura usługowo - handlowa. Znajdziemy tu takie sklepy jak: Biedronka, Netto, Żabka, piekarnia, kwiaciarnia i wiele innych. Mamy także strefę fitness City GYM Rumia. Wiele restauracji takich jak Pizza Hut Rumia, Pierogarnia u Nas, Jedyny taki Kebab w mieście, Seboli Pizza, Restauracja Bar mleczny i wiele innych. Blisko autobusy komunikacji miejskiej, a do SKM Janowo dojdziemy piechotą w 15 min.

BUDYNEK:
Blok wybudowany w 2024 roku przy ul. Krakowskiej. Posiada 2 piętra z cichobieżną windą, która zjeżdża do hali garażowej pod budynkiem. Teren ogrodzony i zabezpieczony domofonem. Przed budynkiem na terenie zamkniętym, miejsca postojowe naziemne. Dookoła dużo zieleni, cicha spokojna okolica.

MIESZKANIE:
Położone na parterze dwupiętrowego budynku - mieszkanie bez barier. Powierzchnia użytkowa mieszkania to 66,45 m2. Mieszkanie w pełni wyremontowane i urządzone przez dewelopera, jako mieszkanie pokazowe. Wszystko nowe, nie używane - gotowe do zamieszkania.
Składa się z:
- salonu z aneksem kuchennym z wyjściem na mały ogród,
- sypialni z dużym łóżkiem i szafą,
- łazienki z prysznicem,
- dodatkowego pokoju z szafą,

DODATKOWE INFORMACJE:
Zakup mieszkania bezpośrednio od dewelopera, w raz z całym wyposażeniem widocznym na zdjęciach. W nieruchomości ogrzewanie wody ciepłej i ogrzewanie mieszkania z sieci miejskiej.
Opłaty czynszowe na poziomie ok 500 zł/ miesiąc. Możliwość zakupienia miejsca postojowego w hali garażowej w cenie 39.000 zł. Liczba miejsc ograniczona.

-----------------------------------------------------------------------------------------------
DOKONAJ ZAKUPU Z BIUREM NIERUCHOMOŚCI VERRE HOME !!!
SKORZYSTAJ Z PROFESJONALNEJ OBSŁUGI,
ZAPŁAĆ KORZYSTNĄ CENĘ I POCZUJ SIĘ BEZPIECZNIE !!!

GWARANTUJEMY:
- weryfikację stanu prawnego nieruchomości,
- bezpłatną i skuteczną pomoc w uzyskaniu kredytu,
- pomoc na każdym etapie zakupu nieruchomości,
- pomoc przy przeprowadzce (profesjonalna firma),
- ubezpieczenie OC Biura Nieruchomości VERRE HOME - 500.000 EURO
Więcej informacji na stronie Biuro Nieruchomości VERRE HOME - www.verrehome.pl
Nieprawidłowy adres E-mail